Teren konwentu

Świętej Trójcy





PIWNICA swietej trojcy
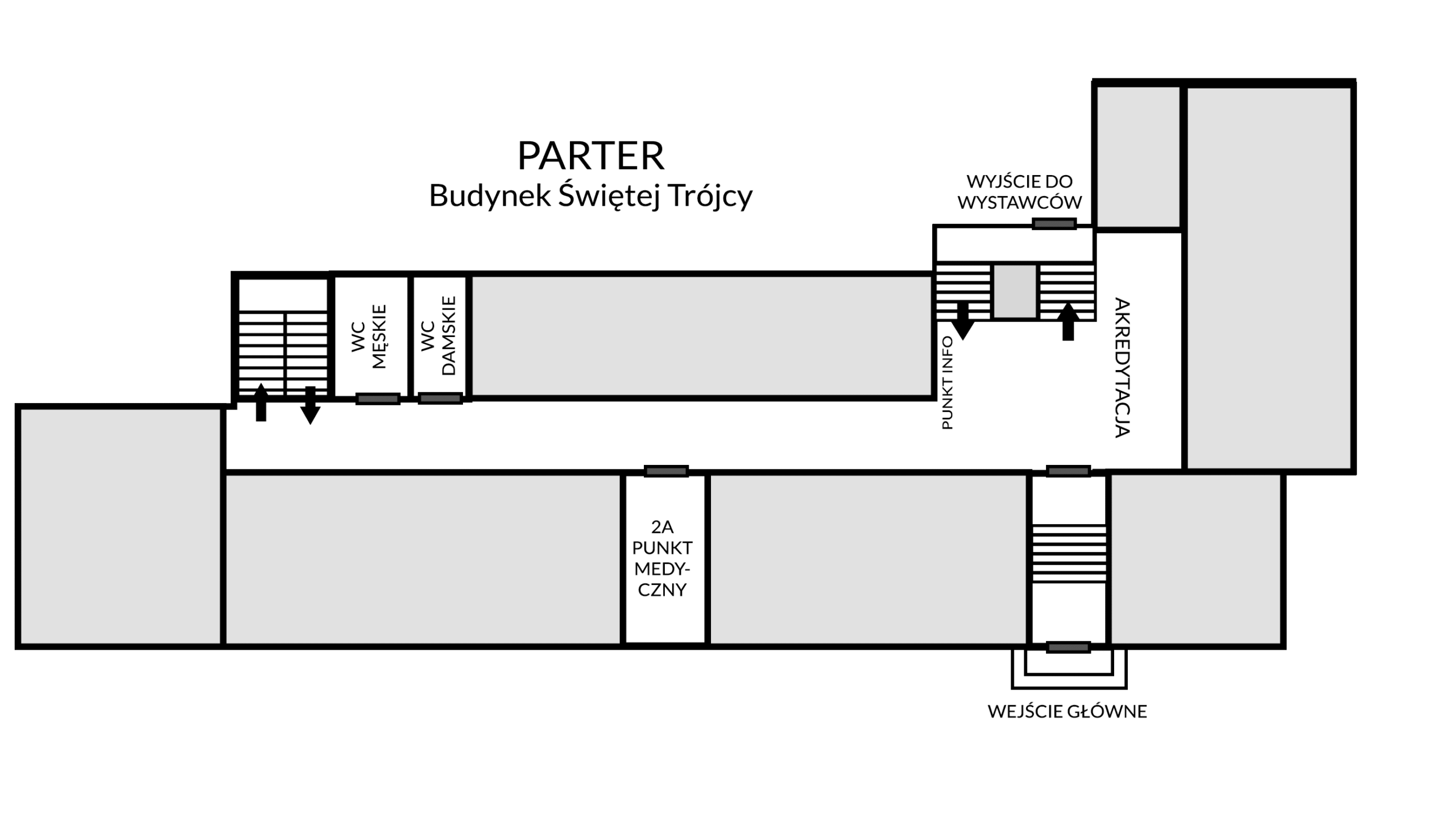
PARTER swietej trojcy
1 PIĘTRO swietej trojcy
2 PIĘTRO swietej trojcy
3 PIĘTRO swietej trojcy
Kruszwicka




parter kruszwicka
I piętro-korekta kruszwicka
KRUSZWICKA 2 PIETRO FINAL KURWA
Kopia III piętro korekta 2
Wyższa Szkoła Gospodarki (WSG)





wsg parter poprawione
H – parter wsg
H – piętro wsg
G – I PIETRO wsg
G- II PIĘTRO wsg


